暖通基本概念:
供热(供暖)通风与空调工程专业(暖通)三大任务:
生活舒适-创造七度空间(室内环境)
温度:冷与热;
湿度:干噪与潮湿;新鲜度:氧气与二氧化碳;
洁净度:落尘与VOC,人员、大气、家俱及装修速度:风速与吹风感;
安静度:噪音振动;
梯度:温度场的均匀性。
生命安全系统(火灾逃生通道安全辅助系统)防烟系统:楼梯间、前室、避难层、次安全区;排烟系统:走道、房间生产安全:粉、尘、湿、热、烟有毒有害气体;特殊设备环境:IT机房、冷冻施工。
暖通三大物质及三大动力设备:
水往低处流->水往高处流->加泵(消耗电力1000℃)
热量从高温传向低温->热量从低温传向高温->加压缩机->热泵(消耗电力)。
变频多联机:变频多联机系统结构:
存在问题:
多联机系统最大只能做到48匹(制冷量120kW),负担建筑面积约1100m2,不能满足大型项目的要求,也不能满足大空间建筑的要求。
只能对空气进行降温(辅助除湿)与升温,更多的功能无法实现。
氟利昂(制冷剂)由其压力驱动,其作用半径有限,所服务的距离不够远。
解决问题:引入新的能量载体:水。
三大物质:
空气(风-流动的空气)
氟利昂(制冷剂);
水-能量的传递介质高温热水、蒸汽:90℃,130℃,200℃;
冷冻水:7℃,12℃;冷却水:32℃,37℃;
冰(雪霜):0℃。
三大动力设备:
三大物质能量交换关系图:
四类空调主机原理简图:
空调系统:
空调系统设备典型设备:
空调冷热源设备:
冷水机组:水冷离心式(螺杆式)、风冷螺杆式、蒸汽LiBr吸收式、直燃LiBr吸收式;
热泵机组:风冷螺杆式、地源热泵、水源热泵;
锅炉:热水锅炉、蒸汽锅炉、电锅炉(规范要求蓄热);
冷却塔:开式、闭式、横流、逆流;
水泵:卧式、立式、端吸、双吸;
空调末端设备:风机盘管、柜式空气处理机组、组合式空气处理机组、冷辐射板。
水泵等典型设备:
小型分散中央空调系统及设备:
变频多联机系统,分体空调,恒温恒湿机组。
小型分散中央空调系统:专业接口
建筑:室外机平台及通风百叶、噪音;
结构:设备承重;
电气:电源(多联机送至室外机)、室内机控制面板
给排水:冷凝水排放路径。
空调末端设备:
风机盘管(=风机+盘管),空气处理机组(“大风机盘管”)
空调末端设备:专业接口
建筑:空调机房、进风百叶及风井、层高、防噪;
结构:设备承重(规范700kg/m2,实际约500kg/m2)、设备基础(条形、整体);
电气配电:(380V,风机盘管220V,配入照明系统)、弱电控制(温度、水阀、风阀);
给排水:冷凝水排放(地漏)、给水(加湿)、洗涤池(清洗过滤网)、喷淋系统。
新风+风机盘管系统空调机房面积(中低端办公室)
全空气系统系统空调机房面积(普通商业、超市)
全空气系统系统空调机房面积(会议、剧场、高端商业:组合式空调机组)
空调冷热源设备:
风冷热泵(风冷冷热水机组):
风冷热泵机组:专业接口
建筑:风冷热泵放置位置(屋顶、室外)、通风良好、防噪;
结构:设备承重(由暖通提资料)、设备基础(重量)、水管重量、隔振;
电气:配电(耗电量大,就近设变压器380V)、冬季制热耗电量稍大、弱电控制(BA、水系统);
给排水:凝水排放(冬季融霜)、给水(空凋补水)。
水冷式冷水机组(离心式、螺杆式):
地源热泵冷热水机组(离心式、螺杆式):
水冷式冷水机组及地源热泵机组:专业接口
建筑:冷冻机房(主机、空调循环水泵)、隔声防振;
地源热泵系统:室内埋管区域(地下室底板下、绿化地带、车行道下)
结构:设备承重(由暖通提资料)、设备吊装孔(机组一般设在地下室)及运输通道承重、水沟(建筑垫层?结构局部成沟)、设备基础(重量)、水管重量、隔振;
电气:配电(耗电量大,就近设变压器380V)、冷水机组为夏季季节性负荷、热泵机组为冬夏两季负荷、水泵配电、弱电控制(BA、水系统);
给排水:机房设集水井排水、给水(空凋补水);
水冷式机组:冷却塔补水(水量较大:循环水量的1.5%,单独的水泵及水位控制)。
冷冻机房设备布置原则:
1、同类设备集中布置;
2、先大(主机、分集水器)后小;
3、重点考虑分集水位置,便于管线进出机房;
4、管线高低错落,机房内联络管线标高进退余地较大。
机房内设备最小净距要求:
机组与墙:1m;机组与配电柜:1.5m;
机组与机组及机组与其它设备:1.2m;
机组与其上方管道、烟道及电缆桥架:1m;
主要通道宽度:1.5m;
宜预留蒸发器与冷凝器同等长度的检修距离;
水泵间距如下表(建筑给排水设计规范3.8.14条):
机房内宜有检修水泵的场地,检修场地尺寸宜按水泵或电机外形尺寸四周有不小于0.7m的通道确定挂墙式配电柜和控制柜、靠墙安装落地式配电柜和控制柜前通道宽度不宜小于1.5m;
冷冻机房布置的三种典型平面:“日字型、目字型及L型”
冷却塔:水与空气直接接触换热
冷却塔:专业接口
建筑:冷却塔安装位置(屋顶、室外绿化地带、建筑楼层内)、隔声;
结构:冷却塔重量(较重)、基础(重量等同冷却塔,依据甲方定购设备不同而异)、水管重量、隔振;
电气:配电、弱电控制(BA、水系统);
给排水:补水及水位控制。
锅炉:
锅炉房:专业接口
建筑:锅炉房位置(首层、地下一层、屋顶、负压锅炉可设于地下二层)、泄爆口(锅炉房面积的10%,轻质-120kg/m2或玻璃顶)、两个安全出口(一个直接,另一个可间接)、烟囱管井;
结构:锅炉承重(由暖通提资料)、设备吊装孔及运输通道承重、水沟;(建筑垫层?结构局部成沟)、基础(重量)、水管重量;
电气:燃气报警及联动系统;
给排水:气体消防或水喷雾消防系统、锅炉房设集水井排水、大型蒸汽锅;
炉房设排污降温水池。
中央空调系统分类:
按三类方式分类:
室内末端的换热介质氟系统:VRV多联机系统,分体空调;
水系统:制冷(热)主机、锅炉、城市冷热水管网提供空调冷热水;
室内热量排至室外介质(室外热量被吸入室内介质);
水冷式:室内空调末端->水->氟利昂压缩->水->冷却塔->大气->土壤;
风冷式:室内空调末端->水->氟利昂压缩->风冷冷凝器->大气;
室内末端设备布置方式集中式:空气处理机组集中设在空调机房内为一个或多个空间服务:商场(超市)、剧场、会议厅(公众号机电人脉)、宴会厅、机场候机厅…空间大,人员多;甲A写字楼的办公室;
分散式:新风机组集中设置,风机盘管系统分房间布置;
典型系统举例:
风冷式氟系统:VRV系统(一般为分散式系统);
水冷式氟系统:水源VRV系统(一般为分散式系统),水冷恒温恒湿机组,水环热泵;
风冷式水系统:风冷热泵系统(可构成集中式或分散式系统);
水冷式水系统:水冷冷水机组+锅炉;地源热泵系统(可构成集中式或分散式系统)。
通风及防排烟系统:
通风及防排烟系统设备:
设备:风机:离心式、轴流式、贯流式;高温型;单速、双速风口:送风口与排烟口;
风阀:防烟阀(280℃)、防火阀(70℃)、常开、常闭;
通风系统:自然通风、机械通风;
全面通风、局部通风、平时通风、事故通风、人防通风(清洁式、滤毒式及隔绝式);
防烟系统(加压送风系统、也称正压送风系统)、防烟楼梯间(不是封闭楼梯间)、前室(合用前室)、避难层、次安全区;
排烟系统:自然排烟、机械排烟、防烟楼梯间、前室(合用前室)、避难层、内走道、房间、中庭;
消防性能化:依据消防性能化的意见进行设计。
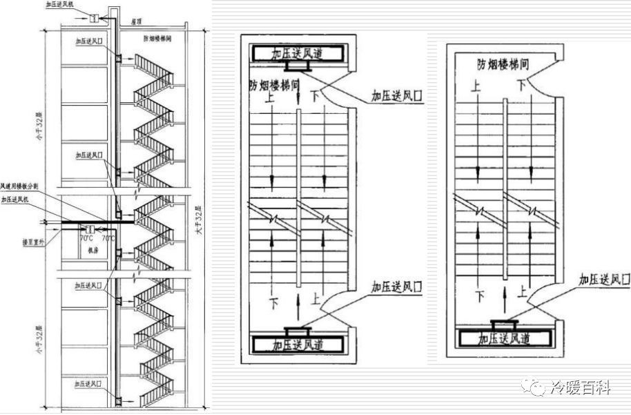
防烟系统要点:
建筑高度<50m一类公建及建筑高度<100m居住建筑,楼梯间、前室(含合用前室及消防电梯间前室);
可采用可开外窗(自然排烟)的方式替代防烟系统:前室2m2,合用前室3m2,防烟楼梯间2m2(每5层);
防烟楼梯间+前室:可只对楼梯间送风,前室不送风(目前规范);
防烟楼梯间+合用前室:对楼梯间送风及合用前室均应送风;
设于同一位置,±0以下梯段为地下服务,±0以上梯段为地上服务,应视为两个楼梯间;
剪刀楼梯间为两个楼梯间,可共用一个风井单个系统负担层数<32层封闭避难层:30m3/m2·h;
排烟系统要点高规:一类高层、建筑高度>32m的二类高层中:长度>20m的内走道、面积>100m2地上房间、面积>50m2地下房间;
多规:9.1.3下列场所应设置排烟设施:
丙类厂房中建筑面积大于300m2的地上房间;人员、可燃物较多的丙类厂房或高度大于32m的高层厂房中长度大于20m的内走道;任一层建筑面积大于5000m2的丁类厂房;
占地面积大于1000m2的丙类仓库;
公共建筑中经常有人停留或可燃物较多,且建筑面积大于300m2的地上房间;长度大于20m的内走道;
中庭;
设置在一、二、三层且房间建筑面积大于200m2或设置在四层及四层以上或地下、半地下的歌舞娱乐放映游艺场所;
总建筑面积大于200m2或一个房间建筑面积大于50m2且经常有人停留或可燃物较多的地下、半地下建筑或地下室、半地下室;
其它建筑中长度大于40m的疏散走道。
自然排烟需求:房间及走道面积的2%,净空高度<12m中庭(5%)排烟口(自然及机械)作用半径(拆线距离)为30m;
4、采暖系统采暖设备及系统分类:
采暖热源:
锅炉:热水锅炉、蒸汽锅炉、电锅炉(规范要求蓄热);
市政热网:高温热水:70/130℃,低温热水:60/80℃,蒸汽:180~220℃
采暖设备:散热器、暖风机、热辐射板
采暖系统:散热器采暖系统:热水采暖系统(80℃)、蒸汽采暖系统(工业建筑)
地板采暖系统:低温热水(<50℃),电热采暖。
管线系统及管井需求:
管线系统:
风管:空调送回管,回风管及新风管;排烟风管、排风管;进风管,加压送风管;烟囱(锅炉),排油烟管。
水管空调冷冻水、空调热水、冷却水、凝结水管;采暖热水管
蒸汽管:高压蒸汽管、低压蒸汽管
金属与非金属:
金属风管:镀锌钢板,不锈钢板,铝板;
非金属风管:无机玻璃钢,玻璃棉板;
金属水管:无缝钢管,镀锌钢管,不锈钢管;
非金属水管:聚丙烯(PPR),聚乙烯(HDPE、PeRT、PVC),聚丁烯(PB)
有压与无压,有压:空调、采暖及冷却水水管,蒸汽管;
无压:风管、凝结水管(排水管)。
暖通与各专业协同作业要点:
建筑:节能环保(墙体保温、围护结构性能)、立面造型(百叶,自然通风,第5立面)、房间净高控制、各类机房位置与面积、管井、复杂及高大空间设计、人员密度、防火分区、防烟分区、设备转换层;新技术应用;
结构:设备及管道重量(高层水立管),管道变形应力,剪力墙洞口,楼板洞口,穿梁可行性,梁高及布局,水沟及降板,集水井,基础,振动;
电气:供配电设备多(空调主机、水泵、空调末端、冷却塔、风机···),弱电控制(平时及火灾)要求与点位,灯光负荷密度,用电设备负荷,管线综合与避让;
给排水:空调补水,冷却塔补水,空调机房及冷冻机房排水,卫生热水热源,管井协同,管线综合与避让;
预算:新技术及新设备的投资成本,变更的合法性。
关键词:
暖通知识